Apžvalga

  • Karkasiniai namai
  • Tipas
  • 73 m2

Detalus aprašymas

    Tromse 73 (43m2 + antresolė 30m2) – tai modernios ir šiuolaikiškos išvaizdos bei kompaktiško įrengimo namelis tinkamas poilsiui prie ežero, sodyboje, kaime. Jis yra lengvai transportuojamas ir pristatomas klientui jau iki galo surinktas. 

     Tromse 73 yra surinkinėjamas ant metalinio suvirinto rėmo karkaso, todėl jį galima lengvai transportuoti į bet kurią norimą vietą. Jis yra lengvai pakeliamas kranu, užkeliamas ant krovinius gabenančios priekabos ir pristatomas į bet kurią vietą klientui. Pastaba –  prieš transportavimą ir užsakymą reikia patikrinti ar priekaba galės privažiuoti prie vietos. Tą atlieka mūsų komandos nariai.

Namelio techninė informacija:

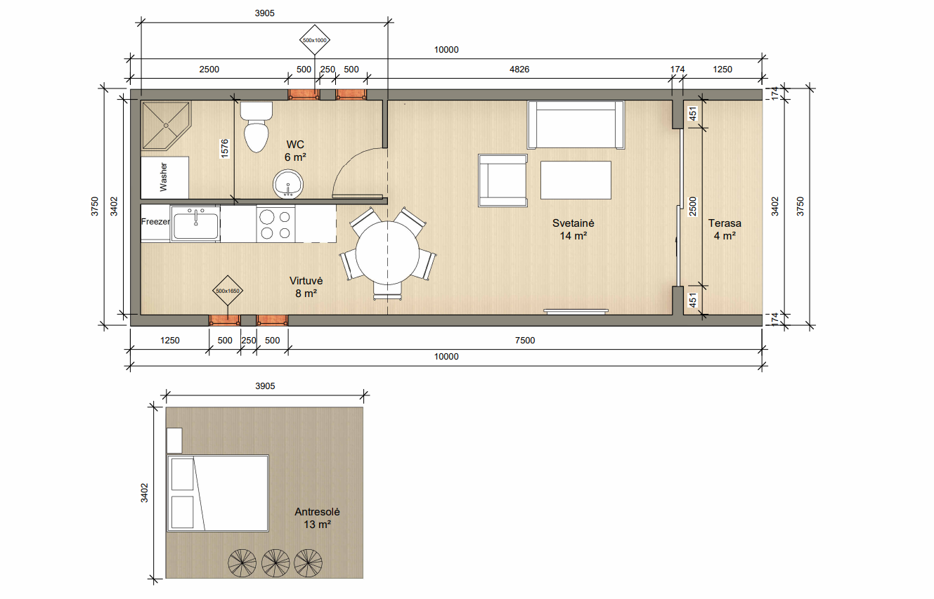
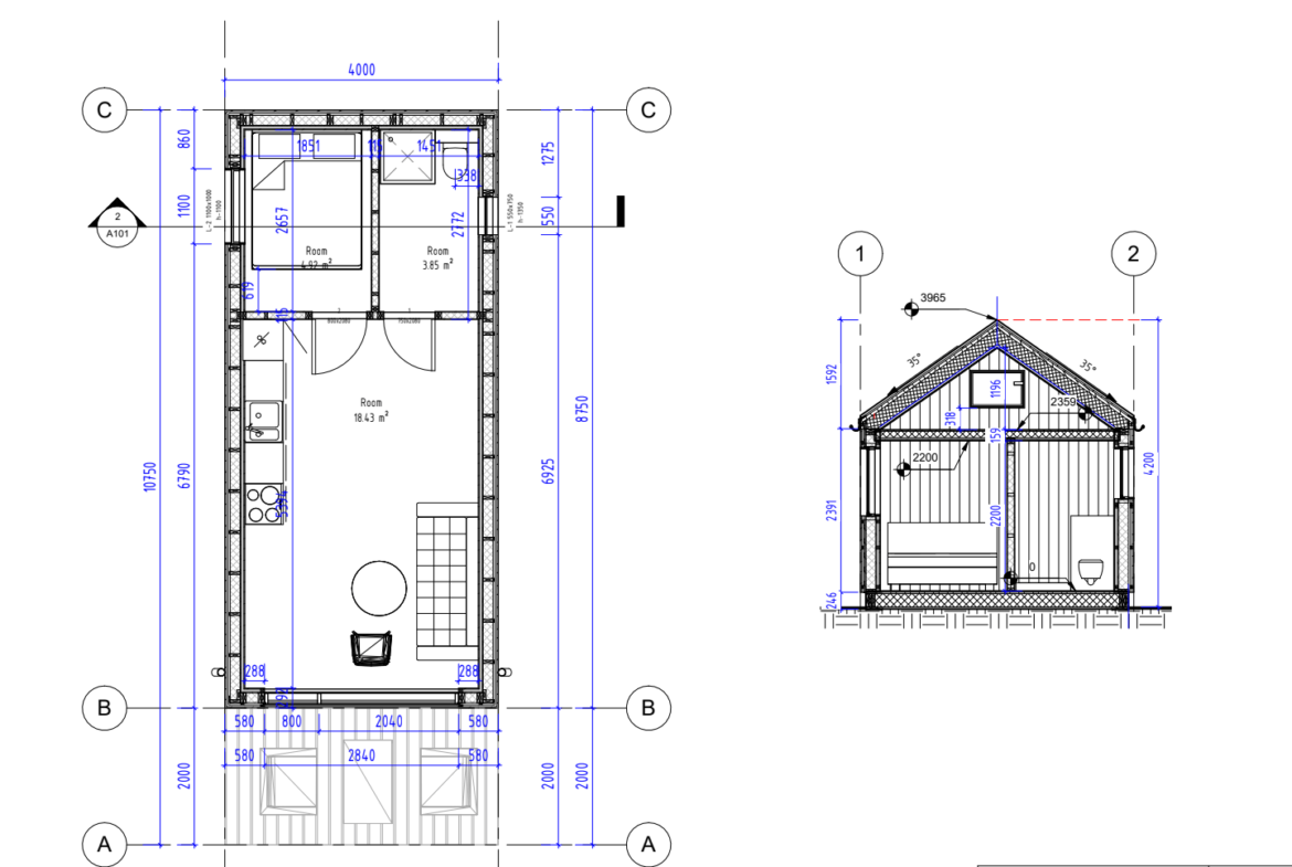
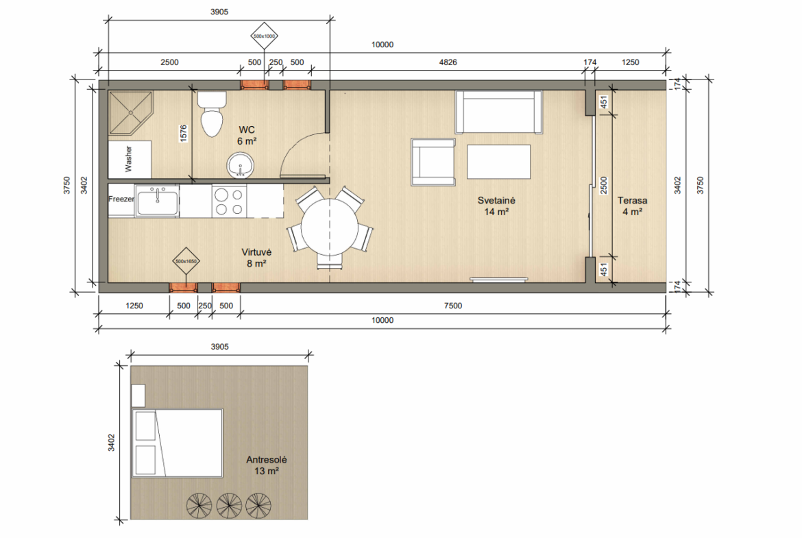
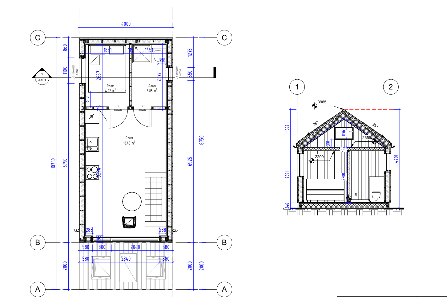
  • Namelio išmatavimai: 4 x 10,75 m
  • Namelio aukštis: 4 m
  • Namelio dydis: 43 m2 + 30 m2 antresolė

Kambarių plotų specifikacija:

  • Viso plotas – 43 m2 + 30 m2 antresolė
  • Svetainė su virtuve – 27,15 m2;
  • Miegamasis – 4,92 m2;
  • Sanmazgas – 3,85 m2;
  • Antresolė (miegamoji dalis) – 30 m2.

 Medžiagiškumas ir techninės charakteristikos:

  • Konstrukcija:
    • grindys: plieninis tvirtas rėmas;
    • sienos/stogas medinis karkasas iš kalibruotos C24 medienos.
  • Apšiltinimas:
    • grindys: 200mm Paroc akmens vata, garo izoliacija;
    • stogas: 200 mm Paroc akmens vata, garo izoliacija;
    • sienos: 200 mm (150mm + 50mm) akmens vata , viduje garo izoliacija, mediniai 45mm x 45mm tašeliai apdailai tvirtinti.
  •  Vidinės pertvaros:

                    karkasinė 45×95 mm kalibruota C24 mediena.  

Namelio išorės ir vidaus apdaila:

  • Langai ir durys: A++ klasės 3-jų stiklo paketų, 7 kamerų sistema, išorės spalva pilka 7016 antracito, vidus – balta.
  • Stogas: skarda Classic:
    • Classic click Ral7016 matinė spalva
    • Lietaus nuvedimo sistema įdedama į namelį (nemontuojama dėl pažeidimų transportuojant).
  • Fasadas:
    • Gali būti termomediena arba dažyta medinė dailylentė;
    • Apsauga nuo graužikų;
    • Ventiliuojamas fasadas.
  • Grindys:
    • Antresolė: medžio karkasas, apsiūtas OSB3 22mm plokšte;
    • Vonios kambarys: betonuojamos – šildomos grindys;
    • Kitose patalpose: OSB3 plokštė 22 mm;

 Papildomai įskaičiuota:

  • Nuotekų ir vandentiekio vamzdynas išvedžiotas sienose iki sanprietaisų taškų;
  • Padarytas nuotekų ir vandentiekio išvadas lauke (liks tik prisijungti lauko tinklus)
  • Vonios kambaryje sienos apsiūtos žaliom gipskartonio plokštėm, šildomos grindys su termostatu.

 Pilna apdailos komplektacija:

  • Grindų danga: lamintas / vinilas / plytelės
  • Vidinės sienos ir lubos:
    • Balinta dailylentė arba dažomos gipskartonio plokštės pasirinkta spalva
    • Vonios kambaryje:
      • Lubos: dažytos;
      • Sienos: plytelės;
      • Grindys: plytelės;
  • Vidaus durys: balintos medžio masyvo su rakinama spyna
  • Elektros instaliacija:
    • Elektrinis grindų šildymo programuojamas termostatas kiekviename kambaryje;
    • Sumontuojamos rozetės ir jungikliais;
    • Įvadinis skydelis su nuotėkio rėle;
    • Vidaus ir lauko (fasado bei terasos) apšvietimas;
  • Vonios kambarys:
    • Kriauklė su spintelė;
    • Karšto vandens boileris;
    • Dušo kabina arba padas su dušo sienele (pasirinktinai);
    • WC (pastatomas arba potinkinis);
    • Spintelė su veidrodžiu;
    • Skalbimo mašinos vieta.
  • Medžio kopėtėlės užlipimui į antresolę

Pristatymas ir gamybos terminai:

  • Pristatymas visoje Lietuvoje (už papildomą mokestį);
  • Pagaminame, pristatome ir surenkame per 2 – 3 mėnesius po gamybos pradžios.

Namelio kaina be vidaus įrengimo – 26814 Eur su PVM

Namelio kaina su vidaus įrengimu – 39990 Eur su PVM

Kontaktinė informacija

Peržiūrėti
Donatas Ališauskas

Klausti

Compare listings

Compare
Donatas Ališauskas
  • Donatas Ališauskas