Apžvalga

  • Kubas serija
  • Tipas
  • 210,41

Detalus aprašymas

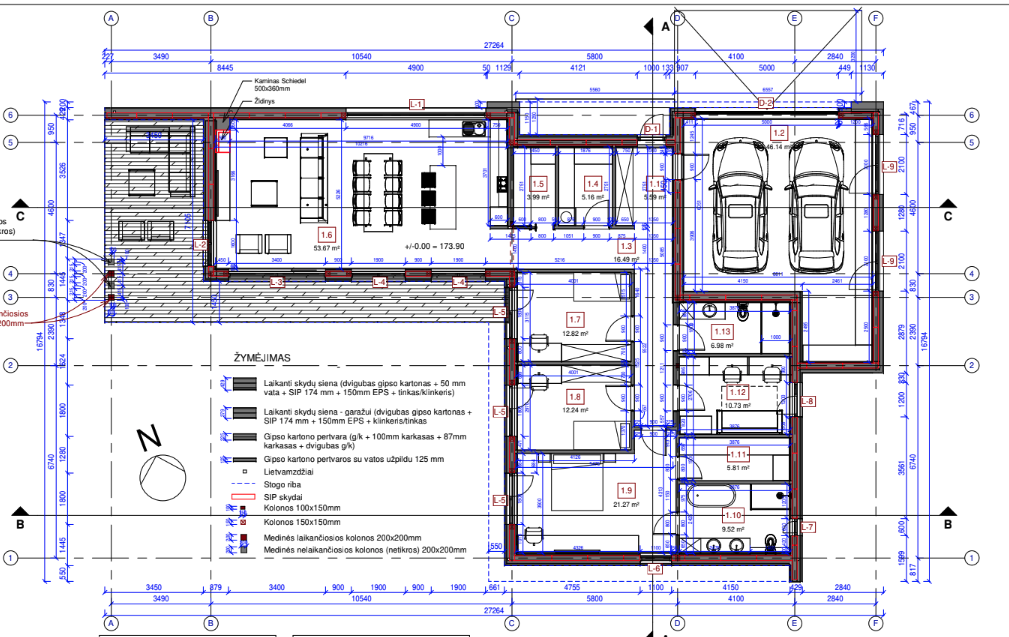
Atraskite šiuolaikinio gyvenimo patogumą modernaus stiliaus name Ramybės namas 210.  Šiame 210,41 m² gyvenamojo ploto name sklandžiai dera modernus namo stilius, erdvė ir funkcionalumas.

Šiuolaikinis dizainas: namas pasižymi šiuolaikiškai madingu plokščiu stogo dizainu, dideliu langu skaičiumi, kas suteiks namo viduje daug šviesos ir patogiu vidaus patalpų išdėstymu. Ramybės namas 210 yra modernaus dizaino namas, pritaikytas šiandieninių šeimų poreikiams.

Kambarių kvadratūra:

  1. Holas/tambūras – 5,59 m²;
  2. Garažas (dviem automobiliams) – 46,14m²;
  3. Koridorius – 16,49 m²;
  4. Techninė patalpa –  5,16 m²;
  5. Kruopinė – 3,99 m²;
  6. Svetainė/virtuvė – 53,67 m²;
  7. Kambarys – 12,82 m²;
  8. Kambarys – 12,24 m²; 
  9. Kambarys – 21,27 m²; 
  10. Sanmazgas – 9,52 m²; 
  11. Drabužinė – 5,81 m²; 
  12. Darbo kambarys – 10,83 m²; 
  13. Sanmazgas – 6,98 m²; 

SIP skydų komplekto kaina – 51760 Eur su PVM (dėl rinkoje staigiai besikeičiančių medžiagų kainų, teirautis komplekto kainos)

SIP skydų komplektą sudaro šie elementai:

  • SIP išklotinių ir konstrukcinės dalies darbo projektas (surinkimo projektas);
  • SIP plokštės – sienos – 174mm, stogas – 374mm (SIP plokštės gali būti ir kitokių storių, pagal Kliento pageidavimus);
  • SIP plokštės preciziškai supjaustytos, išfrezuotos ir paruoštos montavimui.
  • Konstrukcinės C24 klasės medienos komplektas;
  • Dvitėjės sijos;
  • Tvirtinimo detalių komplektas;
  • Klijuojančių putų komplektas;

Papildomos paslaugos, kurias atliekame (neįskaičiuotos į SIP komplekto kainą):

  • Pamatų įrengimas;
  • Langų ir durų montavimas;
  • Fasado apšiltinimo darbai;
  • Fasado apdailo montavimas;
  • Stogo dangos montavimas;
  • Lietvamzdžių, išorinių palangių bei apskardinimo darbų atlikimas;
  • Vidaus apdailos įrengimas;
  • Statybos leidimo gavimas.

Kontaktinė informacija

Peržiūrėti
Mindaugas

Klausti

Compare listings

Compare
Mindaugas
  • Mindaugas